Einsatzmöglichkeiten von Strom- und Datentransport auf einem Medium
Wie bereits in der Einleitung beschrieben geht es im Folgenden nicht in erster Linie um Kommunikationsanschlüsse, die drahtlos realisiert werden können und nicht um Kommunikationsanschlüsse, die leitungsgebunden mit Hilfe einer „NON-LAN-Technik“ realisiert werden können. NON-LAN-Techniken sind alle Techniken, die bisher bei der technischen Gebäudeausstattung (allgemeiner Begriff TGA) mit einer mehr oder weniger herstellerspezifischen Übertragungstechnik oder Stromversorgung eine sehr große Menge an Datenanschlüsse im Gebäude sicherstellen. Abbildung 1 zeigt vereinfacht, wo überall Datenanschlüsse denkbar sind und bereits heute realisiert werden.

Abbildung 1: Einsatzmöglichkeiten Gebäudeautomation
- Raumfunktionen wie z.B. Beleuchtungssteuerung, Temperaturregelung
- Elemente in Zusammenhang mit der Gebäudehülle wie z.B. Jalousien, Sonnenschutz
- Elemente zur spezialisierten nutzerspezifischen Kommunikation wie z.B. Such-/Rufanlagen, Parkleitsysteme, Zeiterfassung, Belegung von Besprechungsräumen
- Elemente in Zusammenhang mit der Sicherheitstechnik wie z.B. Brandmeldeanlagen, Einbruchsmeldeanlagen, Zugangskontrolle, Videoüberwachung
- Klassische IT-Kommunikation mit Notebook, PCs, Drucker, Telefone etc.
Einigen dieser Anschlüsse ist gemeinsam, dass nicht nur eine elektronische Kommunikation zu bzw. mit diesen Elementen möglich sein muss, sondern bereits der Betrieb dieses Elementes eine Stromversorgung voraussetzt, häufig sogar mit einer hohen elektrischen Leistung. Diese wird heute für die Mehrzahl der Elemente klassisch eine parallel bereitgestellte 230-Volt-Versorgung sein. Dafür gibt es u.a. folgende Gründe:
- Einige Elemente dienen nicht nur dem Datenaustausch, sondern sie regeln auch elektrische Geräte, welche eine hohe Energie benötigen. Dies kann z.B. eine Beleuchtung sein, die nicht mit LED-Technik realisierbar ist.
- Der wahrscheinlich wichtigere Grund ist der, dass in fast allen Räumen oder Flächenbereichen genau wegen der notwendigen Beleuchtung immer ein Stromnetz vorhanden ist und der große Vorteil bei der 230-Voltverkabelung darin liegt, dass Erweiterungen um weitere Verbraucher verhältnismäßig einfach sind.
Ohne Frage wird die Vernetzung (= IP-basierende Kommunikationstechnik) all dieser Elemente nicht mehr aufzuhalten sein. Smart Building und Smart Home sind der aktuelle Trend und niemand wird sich dem verschließen können. Ebenfalls ohne Frage werden die Entwicklungen dieser Technik verstärkt den drahtlosen Weg gehen, wie weit dies gelingen wird bleibt abzuwarten. Insbesondere die folgenden beiden Randbedingungen könnten dazu führen, dass weiterhin eine leitungsgebundene Technik favorisiert wird:
- Die Zuverlässigkeit eines Funkkanals ist nicht für jedes Element der Gebäudeautomation ausreichend (man stelle sich eine WLAN-basierende Brandmeldetechnik vor).
- Am Kommunikationsanschluss wird Strom in einer so niedrigen Leistung gebraucht, dass eine 230-Voltverkabelung nicht notwendig ist.
Für diesen Fall ist Power over Ethernet als standardisierte (und man darf auch sagen bewährte) Technik prädestiniert. Proprietäre, davon abweichende Techniken werden sich wohl kaum behaupten können bei der Vielzahl von Kommunikationselementen und Vielzahl von Herstellern, die diesen Markt bedienen. Folgende Technologien profitieren beispielsweise bereits heute von der Kombi-Funktion:
- Access Points
- IP-Kameras
- Zugangskontroll-Terminals
- Displays an Besprechungsräumen
- Display zur Personenführung in Gebäuden
- Wechselsprechterminals und Lautsprecher
Zukünftige Technologien, die eine Kombination von Daten und Strom auf einem Medium brauchen, werden möglicherweise sein:
- Vernetzte Ladestationen
- Controller-Einheiten, welche wiederum steuernde Funktionen in Zusammenhang mit der TGA haben
- und möglicherweise intelligente Beleuchtungselemente.
Um ein Gebäude auf diese zukünftigen Nutzungsmöglichkeiten so vorzubereiten, dass der Anteil an später notwendigen Nach- oder Neuverkabelungen minimiert wird, sind bei der Planung die richtigen Weichen zu stellen. Dazu sind ein paar technische Grundlagen und erste Lösungen kennenzulernen.
Power over Ethernet
Power over Ethernet steht bei Anwendungen im Umfeld der lokalen Netzwerke repräsentativ für den in deutschen Normen verwendeten Begriff der „Fernspeisung“. Der erste Standard IEEE 802.3af wurde bereits 2005 verabschiedet und stellt am stromaufnehmenden Gerät (im Standard bezeichnet als Power Device PD) eine elektrische Leistung von bis zu 12,95 Watt zur Verfügung, dazu muss ein Sendelement (Standard Power Source Equipment PSE) eine elektrische Leistung von bis zu 15,4 Watt abgeben. Die Differenz darf als kabelbezogene Verlustleistung auftreten, was noch später im Artikel bei der Analyse der benötigten Verkabelung eine Rolle spielen wird. Maximal 350 mA sind als Strom zulässig. 3 mögliche Varianten sind denkbar, von denen eine die Strom- und Datenübertragung auch über 4 Adern möglich macht. Wichtig ist das Verständnis, dass jeweils ein Leitungspaar als Parallelschaltung den Strom vom PSE zum PD überträgt und das zweit Paar, ebenfalls als Parallelschaltung, den Stromkreis in die andere Richtung schließt. Damit übernehmen immer 4 Adern die gesamte Stromlast.

Abbildung 2: Übersicht der PoE-Klassen
Im Jahr 2009 wurde eine Fortführung der PoE-Technik in Form des Standards IEEE 802.3at verabschiedet. In folgenden wichtigen Punkten unterscheidet sich dies zu IEEE 802.3af:
- Trotz der Beibehaltung von 4-Adern für die eigentliche Stromversorgung ist die Nutzung einer 4-adrigen Verkabelung nicht mehr möglich
- Die Leistungsparameter wurden erhöht: PSE mit bis zu 30 Watt und PD mit bis zu 25,5 Watt. Maximal 600 mA sind als Strom für ein Paar zulässig (= 300 mA pro Draht)
- Eine Abwärtskompatibilität ist gewährleistet
- Die PoE-Funktionalität wurde „intelligent“, via LLDP (Link Layer Discovery Protocol) kann das PD der Stromquelle genaue Informationen zur Auslastung geben.
- Wie der Vorgängerstandard ist PoE nicht nutzbar für 10GBaseT
Die letzte Weiterentwicklung des Standards erfolgt im Standard IEEE 802.3bt, folgende Änderungen sind wichtig (vorbehaltlich der erwarteten finalen Standardverabschiedung 2018):
- Die Leistungsparameter werden erhöht: PSE mit bis zu 90 Watt und PD mit bis zu 73 Watt. Maximal 960 mA pro Paar sind als Strom zulässig (480 mA pro Ader)
- Eine Abwärtskompatibilität ist gewährleistet. Um diese zu gewährleisten werden 4 „Leistungs-Typen“ definiert (siehe Abbildung 2)
- Wichtig: Es wird ein zweites zusätzliches Paar für die Hinführung des Stromes benutzt (bzw. ein viertes Paar für die Rückführung); deshalb auch das Akronym 4PPoE für „4 Pair PoE“. Das ist insofern wichtig, als dass die Anforderungen an die Adern der Twisted-Pair-Kabel und auch an die Kontakte nicht deutlich steigen müssen, was wiederum Bestandsverkabelungen zu Gute kommen könnte
- Interessant: Es wird eine Aufteilung der Empfängerleistung möglich sein um z.B. bei einer IP-Kamera 2 Paare zur Stromversorgung der Kamera selbst und 2 Paare zum Betrieb einer Heizung zusätzlich bereitzustellen (Bezeichnungen im Standard „Single signature PD und Dual Signature PD“)
- Nutzbar für 10GBaseT
In allen Fällen können die PSE’s sowohl Switches sein (was der Regelfall sein wird) als auch externe Geräte, sogenannte Mid-Span-Geräte, welche auf die „reinkommenden“ Leitungen mit reinen Daten dann den Strom „packen“.

Abbildung 3: Stromfluss bei IEEE802.3bt
Eine zu erwähnende, herstellerspezifische und damit nicht standardisierte Sonderlösung stellt Power over HDBaseT dar (POH). POH basiert auf IEEE 802.3at und ist zu diesem rückwärtskompatibel. Im Unterschied zu diesem liefert es bis zu 100 Watt über 4 Paare (ähnlich also zu IEEE 802.3bt), was gezielt zum Betrieb von Fernsehern mit Bildschirmgrößen von bis zu 60 Zoll geeignet sein soll.
Das Kabelproblem
Grundsätzlich muss man sich vergegenwärtigen, dass die internationale IEEE-Norm eine erhebliche Menge an Installationen berücksichtigen muss, die auf Basis von ungeschirmten Kabel mit einem typischen Aderdurchmesser von AWG24 bis AWG26 realisiert worden sind. In Deutschland setzt man seit vielen Jahren fast ausschließlich geschirmte Kabeltypen mit AWG22 oder AWG23 ein, was zu erheblich besseren Qualitäten, auch in Zusammenhang mit PoE führt. Viele kabelspezifische Einschränkungen in der weltweit zur Verfügung stehenden Literatur und den Richtlinien sind somit nicht übertragbar bzw. die in Deutschland verwendeten Materialien schaffen für die Planung zusätzliche nutzbare Reserven.

Abbildung 4: Anforderungen an die Datenkabel
Ausgehend von der Annahme, dass eine 8-adrige Verkabelung zur Verfügung gestellt werden muss, lassen sich anhand der Forderungen der IEEE 802.3at Tabelle 33-1 wichtige Informationen ablesen:
- Grundsätzlich wird eine Verkabelung nach „Class D“ empfohlen bzw. gefordert, dies entspricht der Kategorie 5 der EN 50173, was vermutlich Standard bei allen existierenden und zukünftigen Verkabelungen zumindest in Europa sein wird bzw. weit übertroffen wird (für IEEE 802.3af reichen Kabel der Spezifikation Kategorie 3 aus).
- Es wird ein konkreter Schleifenwiderstand gefordert, den man damit als Qualitätsmaß bei der Auswahl eines geeigneten Kabels verwenden kann. Aber: Die IEEE macht deutlich, dass der Wert in der Tabelle sich auf den Schleifenwiderstand des Stromkreises bestehend aus einer Parallelschaltung von zwei Adern bezieht (deshalb „Channel maximum DC pair loop resistance“) und dass die meisten Angaben des Schleifenwiderstands der Kabelhersteller sich auf einen einfachen Kreis mit nur einem Leiter beziehen. Deshalb Vorsicht bei dem Vergleich! Auch der angegebene Strom bezieht sich auf die Parallelschaltung der beiden Adern.
- Achtung: Die Anforderungender IEEE
betrachten nicht die Qualitätsunterschiede der Kabel, die z.B. durch andere Kabelaufbauten wie z.B. dickere Aderdurchmesser oder Schirmung die thermischen Eigenschaften verbessern.
In Abbildung 5 ist ein Screen-Shot einer Channel-Messung zu sehen, bei der ein Schleifenwiderstand von 15,6 Ohm für das Adernpaar 36 gemessen wurden. Ermittelt man für die Parallelschaltung dieser beiden Drähte rechnerisch den Widerstand, so halbiert sich der PoE-Schleifenwiderstand und dieser wäre zu vergleichen mit den Werten der IEEE-Tabelle.

Abbildung 5: Beispiel für eine Kabelmessung
Es darf davon ausgegangen werden, dass die Hauptmenge der aktuell in Deutschland im Einsatz befindlichen Kabel oder auch die bei den meisten Planungen vorgesehenen Twisted-Pair-Kabel mit einem Durchmesser von AWG22 oder AWG23 völlig geeignet ist zur Übertragung der hohen PoE-Leistungen nach IEEE 802.3bt. Das einzelne Kabel ist nicht das Problem. Das Problem liegt bei der Bündelung der Kabel, hier sind Effekte zu erwarten, die möglicherweise erheblichen Einfluss auf die Planung der Kommunikationsverkabelung nehmen werden. Die gesamte Erwärmung des Bündels hängt ab von der Anzahl der Kabel im Kabelbündel, der Art der Verlegung (offen oder im geschlossenen Installationskanal) und der Luftkonvektion bzw. Zwangsbelüftung. Viele Kabelhersteller beschäftigen sich mit diesem Thema und haben dazu ausführliche Laborberichte veröffentlich (Reichle de Masari, Leoni, Siemon, Dätwyler und weitere). Alle kommen ansatzweise zu denselben Ergebnissen:
Das Problem wird nicht sein, dass ein potenzieller Brandherd durch die Bündelung entsteht, sondern dass die übertragungstechnischen Eigenschaften darunter leiden und höhere Datenraten nicht mehr möglich sind.
Beispiel: Leoni geht bei einer Verdopplung der Kabelanzahl im Bündel von 19 auf 37 Kabel davon aus, dass die Temperatur der Kategorie-7A-Kabel sich um ca. 1,3 Grad Celsius erhöht, dies führt zu einer Erhöhung der frequenzabhängigen Leitungsdämpfung und dies zu einer Längenreduzierung von bis zu ca. 0,6 % je Grad Erhöhung (Leoni technical bulletin „Power over Ethernet auf dem Vormarsch“ von 2014). Auch der Systemhersteller Siemon weist eine Erhöhung der frequenzabhängigen Einfügedämpfung in Höhe von ca. 0,4 dB (f = 100 MHz) aus, wenn die Umgebungstemperatur eines Kategorie 7A-Kabels sich um 20 Grad erhöht. Zum Vergleich: ein 100 m langes Kategorie 7A-Kabel hat eine Einfügedämpfung von ca. 15-17 dB bei 100 MHz.
Statt wenige dicke Kabelbündel wird empfohlen, mehrere kleinere Kabelbündel (Richtgröße 25 Kabel pro Bündel) vorzusehen, Ziel ist die Vergrößerung der thermischen Abstrahlfläche. Untersuchungen haben ergeben, dass ein Abstand von 15 mm zwischen den Bündeln die Wechselwirkung so reduziert, dass die Temperatur so hoch ist wie in einem isoliertem Bündel.
Der Systemanbieter Siemon weist in seinen Unterlagen eine Nutzbarkeit der eigenen Kategorie 7A-Typen für PoE nach IEEE802.3bt (100 Watt) und einer Datenrate von 1000 MBit/s bis zu einer Länge von 100 m und einer Bündelstärke von bis zu 96 Kabel aus, vorausgesetzt die Umgebungstemperatur liegt bei maximal 60 Grad Celsius (siehe „Zone Cabling and Coverage Area Planning Guide: 60W PoE Lighting Applications“). Es ist zu vermuten, dass auch andere Kabelhersteller mit gleichen Kabeltypen ähnliche Zusagen machen können. Deshalb spielen die Längenreduzierungen bei der Verwendung von AWG22-Typen in Standard-Umgebungen mit den typischen Planungslängen von bis zu 90 m eine eher untergeordnete Rolle.
Möchte man dennoch auf „Nummer sicher gehen“, so könnte man bei der konkreten Planung nach belastbaren, herstellerunabhängigen Richtlinien oder Empfehlungen suchen. Neben der amerikanischen ANSI/TIA-568-C.2 (Basisgröße ist dort aber eine ungeschirmte AWG25-Verkabelung) führt die EN 50174-2 (Ausgabe Entwurf vom November 2017) auf 4 Seiten ausführliche Tabellen und Formeln zum Thema Fernspeisung und den Einfluss der Temperatur. Nach Ansicht des Autors sind diese Leitlinien im Planungsalltag aber wenig praktikabel und dürften wohl in die wenigsten Planungen einfließen:
- Wer will tatsächlich die Umgebungstemperatur für die unterschiedlichen Teilstrecken der Verkabelung ermitteln oder vorhersagen, denn diese müssen in die Formeln eingeben werden? Konkret: Die Länge LN muss ermittelt werden, dies ist „die Länge der Verkabelungsstrecke/Übertragungsstrecke mit gemeinsamen thermischen Eigenschaften, wobei Längenwerte von unter 1m… nicht berücksichtigt werden“, dazu kommt die Ermittlung von Tambient-n als Umgebungstemperatur und Ermittlung von DeltaTambient-n als zusätzliche Temperatur aufgrund der Fernspeisung auf der Länge LN. Bitteschön, wer wird das machen, vor allem mit einer Prognose zu einem PoE-Einsatz in der Zukunft?
- Wer kann bei einer gewöhnlichen Verkabelung genau vorhersagen, in welcher Bündelform die Kabel durch das Installationsunternehmen verlegt worden sind und wer kontrolliert das dann tatsächlich, nachdem die Kabelwege geschlossen wurden?
Bleibt man bei der bereits ausgesprochenen Empfehlung vieler Kabelhersteller, das Bündel auf maximal 25 Kabel zu begrenzen (was im Übrigen auch der pauschalen Empfehlung der EN 50174-2 mit 24 Kabel entspricht), so sollte das Risiko einer schlechten Übertragungsstrecke gering sein.
Umfangreiche Felderfahrungen liegen leider nicht vor, so dass zu erwarten ist, dass in den nächsten Jahren Anpassungen der Empfehlungen folgen werden. Aus Sicht des Autors ist also der Einsatz von PoE mit hohen Leistungen über eine hohe Anzahl von Kabel über ggf. große Längen und hohen Übertragungsraten mit vielen Fragezeichen verbunden.
Zur Vermeidung von hohen Temperaturen wird der Einsatz von offenen Kabelführungssystemen, im Idealfall Gitterrinnen empfohlen. Doch gerade für den Fall von größeren Bündelungen sind Gitterrinnen wegen der mechanischen Belastung auf den runden Gitterstäben nicht optimal geeignet und werden deshalb als Verlegesysteme für Installationskabel selten eingesetzt.
In direktem Widerspruch zu offenen Kabelführungssystemen stehen Bemühungen, die eine Erhöhung der EMV-Festigkeit durch Verwendung von Trassendeckel vorsehen, das ist aber erfahrungsmäßig eher selten in Installationen anzutreffen. Noch schwieriger könnte dieses Problem werden, wenn dicke Kabelbündel z.B. durch fest verschlossene Promat-Verkofferungen geführt werden.
In der EN 51074-2 fließen unterschiedliche Kabelführungssysteme in Form von 4 Tabellen in die Berechnung ein (jede Tabelle steht für unterschiedliche Installationsbedingungen). Danach führt ein geschlossener Kanal z.B. bei 48 Kabel in einem Bündel zu einer Temperaturerhöhung von ca. 5 Grad Celsius im Vergleich zu einer offenen Trasse/Wanne. Dies wiederum beeinflusst dann die maximale Länge der festinstallierten Strecke. Jedes Installationssystem und jede Bündelung muss sicherstellen, dass die Temperatur der dort verlegten Kabel nicht in den Grenzbereich rücken, den die Kabelhersteller als zulässige Betriebstemperatur definieren (in der Regel 60 Grad Celsius).
Interessant sind Untersuchungen Mitte 2017, bei denen man feststellte, dass die Farbe eines Metallkanals Einfluss auf die thermische Ableitfähigkeit des Kanales nehmen kann, schwarz ist z.B. die Farbe, welche diese Ableitfähigkeit verbessert.
Das Steckerproblem
Ein weiteres Problem stellt der Stecker dar: Das Steckerziehen unter Last kann aufgrund der Entstehung eines Lichtbogens bzw. durch Funkenbildung zu Beschädigungen am Stecker oder an der Buchse führen, dies nennt man Kontaktbrand. Es kommt zu einer erheblichen Beeinträchtigung oder sogar zum Ausfall der Kontakte. Ein Steckerziehen bei PoE als Stromversorgung für Leuchten wird wohl eher selten vorkommen, aber für den Fall, dass z.B. das Aufladen von Notebooks o.ä. durch PoE mit hoher Leistung geplant ist, müssen natürlich adäquate Steckertechnologien zum Einsatz kommen. Diese Anforderung wurde in den europäischen Standards berücksichtigt und führte zur Beschreibung des Prüfablaufes in der DIN EN 60512-99-001 (Mai 2013), Zitat: „… Durch die in dieser Norm beschriebene Prüfung wird die Eignung eines Steckverbinders ermittelt, einer Mindestanzahl von Steck- und Ziehvorgängen standzuhalten, wenn elektrischer Strom durch die Steckverbinder fließt.“ Viele Datenblätter der RJ45-Hersteller weisen auf eine Einhaltung des Prüfablaufes hin, weisen jedoch nicht die elektrische Leistung bzw. Stromstärke aus, mit der geprüft wurde bzw. sichern die Erfüllung der Prüfung nur für IEEE 802.3at zu. Deshalb sind diese Angaben nur unter Vorbehalt zu nutzen bzw. die Hersteller werden sich vor einer Verabschiedung des Standards IEEE 802.3bt wohl eher zurückhaltend zeigen, hier konkrete Werte vorzugeben. Eine Beurteilung der Eignung von Bestandsverkabelungen für Leistungen oberhalb von 30 Watt, installiert vor 2013 wird nur sehr schwer möglich sein.
Beleuchtung und PoE
Wie bereits in der Einleitung beschrieben scheint es so, als wenn die Kombination von „Licht und Daten“ im Moment der absolute Hype ist und sich jeder verantwortungsvolle IT-Planer bereits jetzt damit auseinandersetzen muss. Ist das tatsächlich so? Das Team der ComConsult Beratung und Planung hat sich mit diesem Thema auseinandergesetzt und kam zu einigen interessanten Ergebnissen. Einleitend sei gesagt, dass es im weiteren Teil des Artikels nicht um die Fragen geht,
- ob eine intelligente Rauminfrastruktur bestehend aus einer zunehmend hohen Anzahl an Datenpunkten sinnvoll ist oder nicht (diese Entwicklung wird man vermutlich nicht mehr aufhalten können),
- ob die sicherheitsrelevanten aktuellen Lösungen so etwas verantwortungsvoll erlauben oder nicht,
- ob PoE-Beleuchtung betriebswirtschaftliche Vorteile z.B. durch eine höhere Energieeffizienz mit sich bringt oder nicht,
- ob und wie sich die betriebsinternen Prozesse dieser Digitalisierung anpassen müssen.
Stattdessen hat sich das Team und der Autor auf die Frage konzentriert, was wäre heute bei der Vorverkabelung eines Gebäudes zu tun, um PoE-basierende Beleuchtungstechnik einführen zu können, wenn man sich dann sofort oder später dafür entscheiden würde.
Fangen wir ganz vorne an. In einem intelligenten Raum müssen Daten gesammelt werden und auf dieser Basis werden Aktionen im Raum ausgeführt, die teilweise mit dem Fließen von erheblicher Energie in den Raum hinein verbunden sind. Für beides lässt sich PoE einsetzen. Zum einen, um das „informationssammelnde“ Element zu betreiben (eine niedrige PoE-Leistung wird benötigt) und zum anderen um das Element zu betreiben, welches im Raum z.B. die „sichtbare“ Funktion auslöst, dies wäre dann z.B. das Einschalten eines Stellmotors oder die Erzeugung von Licht (eine höhere PoE-Leistung wird benötigt). Auf einer sehr abstrakten vereinfachenden Ebene erfolgt etwas Ähnliches bereits heute in jedem Raum: Eine Person (informationssammelndes Element) betritt einen dunklen Raum, stellt mit seinen Augen fest, dass es zu dunkel ist, drückt den Lichtschalter und sorgt damit dafür, dass in den Raum eine ausreichende Strommenge fließt um die Lampe zum Leuchten zu bringen.
Ersetzt man die Augen und Handlung der Person durch ein im Raum installiertes elektronisches Element, so müssen Daten zwischen diesem Element und dem zu steuernden Element oder einer zentralen Steuerungseinheit fließen. Wie wir gesehen haben könnte das theoretisch eine funkbasierende Infrastruktur sein. Die Funkzelle wird aber aus Gründen der unsicheren Zuverlässigkeit nur auf den Raum bzw. eine eingeschränkte Fläche beschränkt sein. Eine für diesen Zweck genutzte Funkzelle, die sich über eine ganze Etage erstreckt ist aus Sicherheitsgründen (im Sinne von Verfügbarkeit) kaum vorstellbar. Damit muss also in jeden Raum oder zumindest in jede Raumgruppe eine Datenleitung geplant werden, dies könnte sowohl Twisted Pair als auch Lichtwellenleiter sein. Ja, es könnte auch eine völlig andere Technik als Ethernet sein und damit ein völlig anderes Medium (wie z.B. die Steuerungsverkabelung bei KNX).
Viele Rauminformationen lassen sich gut mit Sensoren sammeln bzw. weiterleiten, wenn diese im Deckenbereich angebracht werden, was zur Folge hat, dass der Datenanschluss am besten in Deckenhöhe positioniert wird. Wenn bereits der Datenanschluss in Deckennähe angebracht wird liegt es nicht mehr fern, die sich dort befindende Beleuchtung über den Datenanschluss mit Energie zum Zwecke der Abgabe von Licht zu versorgen. Genau da setzt die Technik der Beleuchtung mit Fernspeisung an.
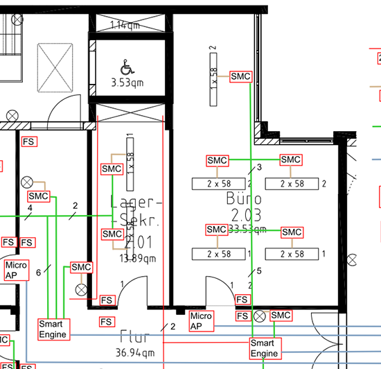
Doch was wäre denn technisch möglich? Lassen Sie uns anhand von einfachen Beispielen die wichtigsten Möglichkeiten anschauen, wie eine Beleuchtung in einem Standardbüro geplant werden kann (leerer Grundriss siehe Abbildung 6). Dabei liegt der Schwerpunkt unserer Betrachtung auf der Planung der notwendigen Verkabelung bzw. damit verbundenen Schaltelemente.

Abbildung 6: Beispielgrundriss Bürobereich mit Eintragung der Leuchten
Beim Vergleich darf ein Punkt nicht außer Acht gelassen werden, der für alle Lösungen gilt: Neben der Beleuchtung braucht jeder Raum eine Grundversorgung an 230-Volt-Anschlussmöglichkeiten um z.B. kleine Schreibtischlampen, Drucker, Faxgeräte und auch bürountypische Geräte wie Staubsauger oder Radios anschließen zu können. Eine Beleuchtung ausschließlich auf Basis der Fernspeisung wird also vermutlich niemals einen vollständigen Verzicht auf 230-Volt-Anschlüssen im Raum zur Folge haben. Diese Stromkreise und Anschlüsse sind in Abbildung 6 nicht dargestellt.
Klassische 230-Volt-Beleuchtung
Die klassische Stromverkabelung ähnelt eher einer Stern/Busverkabelung als einer reinen Sternverkabelung. Die Abbildung 7 zeigt als Detail des Grundrisses ein Eckbüro für 2-3 Mitarbeiter und veranschaulicht: Ausgehend von einem Serienschalter an der Tür werden nur 2 Stränge mit 5 Teillängen (NYM-J 3 x 2,5 qmm) im Raum benötigt um den Raum mit Licht zu versorgen (5 Standardleuchten) und es führt nur eine Leitung vom Elektrounterverteiler in den Raum. Diese Lösung benötigt für den gesamten dargestellten Bürobereich (Abbildung 6) ca. 220 m des Typs NYM-J 3 x 2,5 qmm und viele elektrische Schalter/Taster.
Eine Nachrüstung von einzelnen Beleuchtungselementen ist bei einer klassischen 230-Volt-Versorgung deutlich einfacher, denn es ist in der Regel nicht notwendig, eine Nachverkabelung ausgehend vom Elektrounterverteiler vorzunehmen. Aber diese Lösung besitzt im Vergleich zu den folgenden Lösungen „Null“ Komfort.
Teile diesen Eintrag